Implantée dans le quartier chic des Jardins de Carthage dans la banlieue nord de Tunis, la résidence La Paix se distingue par son architecture majestueuse et son très haut standing. Elle est construite en R+8 et offre des locaux commerciaux à double hauteur sous plafond au rez-de-chaussée. 

LA PAIX EN VIDÉO

A propos du projet

« LA PAIX » est une résidence très haut standing idéalement implantée aux Jardins de Carthage. Elle est composée de deux blocs de 8 étages et de 7 locaux commerciaux au rez-de-chaussée. « LA PAIX » se distingue par son cachet haut de gamme et son emplacement très convoité à mi-chemin du centre-ville de Tunis et de sa banlieue-nord.

  • Architecture raffinée
  • Proche de toutes les commodités
  • Gardée et sécurisée 24/7
  • Appartements lumineux
  • 5 minutes de Tunisia Mall
  • Equipée d’une salle de sport
  • Isolation thermique et phonique
  • 15 minutes de l’aéroport Tunis-Carthage
  • Air de jeux pour les enfants

LA PAIX EN IMAGES

LES PLANS

B1.4 / S+2 / 74.51 m² S+2 type 1
A1.4 / S+2 / 74.13 m² S+2 type 2
A4.1 / S+2 / 98.39 m² S+2 type 3
A4.2 / S+2 / 112.29 m² S+2 type 4
A4.5 / S+2 / 82.07 m² S+2 type 6
B4.3 / S+2 / 102.64 m² S+2 type 7
B4.4 / S+2 / 74.51 m² S+2 type 8
A1.3 / S+3 / 166.89 m² S+3
A4.3 / S+4 / 178.64 m² S+2 type 5
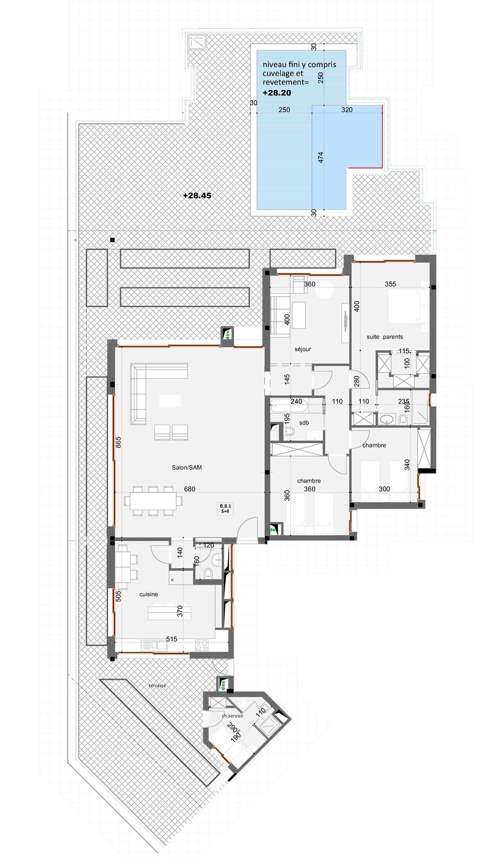
B8.1 / S+4 / 308.52 m² S+4

LES PRIX, LES PLANS ET LES SURFACES

Numéro Étage Type Pièces Surface Plan Disponibilité Prix Comparaison
A.3.4 Étage 3 Appartement S+1 56.35 m²
Vendu
A.4.4 Étage 4 Appartement S+1 57.04 m²
Vendu
A.5.4 Étage 5 Appartement S+1 57.04 m²
Vendu
A.6.4 Étage 6 Appartement S+1 57.04 m²
Vendu
B.7.4 Étage 7 Appartement S+1 56.58 m²
Vendu
A.7.4 Étage 7 Appartement S+1 51.40 m²
Vendu
Numéro Étage Type Pièces Surface Plan Disponibilité Prix Comparaison
A.1.5 Étage 1 Appartement S+2 82.07 m²
Vendu
B.1.5 Étage 1 Appartement S+2 82.07 m²
Vendu
B.1.4 Étage 1 Appartement S+2 74.51 m²
Vendu
B.1.3 Étage 1 Appartement S+2 102.64 m²
Vendu
B.1.2 Étage 1 Appartement S+2 112.29 m²
Vendu
B.1.1 Étage 1 Appartement S+2 98.39 m²
Disponible
A.1.4 Étage 1 Appartement S+2 74.13 m²
Vendu
A.1.2 Étage 1 Appartement S+2 112.29 m²
Vendu
A.1.1 Étage 1 Appartement S+2 98.39 m²
Vendu
B.2.5 Étage 2 Appartement S+2 82.07 m²
Vendu
A.2.5 Étage 2 Appartement S+2 82.07 m²
Vendu
B.2.4 Étage 2 Appartement S+2 74.51 m²
Vendu
B.2.3 Étage 2 Appartement S+2 102.64 m²
Vendu
B.2.2 Étage 2 Appartement S+2 112.29 m²
Vendu
B.2.1 Étage 2 Appartement S+2 97.21 m²
Vendu
A.2.4 Étage 2 Appartement S+2 74.13 m²
Vendu
A.2.2 Étage 2 Appartement S+2 112.29 m²
Vendu
A.2.1 Étage 2 Appartement S+2 97.21 m²
Vendu
B.3.5 Étage 3 Appartement S+2 82.07 m²
Vendu
B.3.4 Étage 3 Appartement S+2 74.51 m²
Vendu
B.3.3 Étage 3 Appartement S+2 102.64 m²
Vendu
B.3.2 Étage 3 Appartement S+2 112.29 m²
Vendu
B.3.1 Étage 3 Appartement S+2 98.39 m²
Vendu
A.3.5 Étage 3 Appartement S+2 82.07 m²
Vendu
A.3.2 Étage 3 Appartement S+2 112.29 m²
Vendu
A.3.1 Étage 3 Appartement S+2 98.39 m²
Vendu
B.4.5 Étage 4 Appartement S+2 82.07 m²
Vendu
B.4.4 Étage 4 Appartement S+2 74.51 m²
Vendu
B.4.3 Étage 4 Appartement S+2 102.64 m²
Vendu
B.4.2 Étage 4 Appartement S+2 112.29 m²
Vendu
B.4.1 Étage 4 Appartement S+2 98.39 m²
Vendu
A.4.5 Étage 4 Appartement S+2 82.07 m²
Vendu
A.4.2 Étage 4 Appartement S+2 112.29 m²
Vendu
A.4.1 Étage 4 Appartement S+2 98.39 m²
Vendu
B.5.5 Étage 5 Appartement S+2 82.07 m²
Vendu
B.5.4 Étage 5 Appartement S+2 74.51 m²
Vendu
B.5.3 Étage 5 Appartement S+2 102.64 m²
Vendu
B.5.2 Étage 5 Appartement S+2 112.29 m²
Vendu
B.5.1 Étage 5 Appartement S+2 98.39 m²
Vendu
A.5.5 Étage 5 Appartement S+2 82.07 m²
Vendu
A.5.2 Étage 5 Appartement S+2 112.29 m²
Vendu
A.5.1 Étage 5 Appartement S+2 98.39 m²
Vendu
B.6.5 Étage 6 Appartement S+2 82.07 m²
Vendu
B.6.4 Étage 6 Appartement S+2 74.51 m²
Vendu
B.6.3 Étage 6 Appartement S+2 102.64 m²
Vendu
B.6.2 Étage 6 Appartement S+2 112.29 m²
Vendu
B.6.1 Étage 6 Appartement S+2 98.39 m²
Vendu
A.6.5 Étage 6 Appartement S+2 82.07 m²
Vendu
A.6.2 Étage 6 Appartement S+2 112.29 m²
Vendu
A.6.1 Étage 6 Appartement S+2 98.39 m²
Vendu
B.7.5 Étage 7 Appartement S+2 82.07 m²
Vendu
B.7.3 Étage 7 Appartement S+2 102.64 m²
Vendu
B.7.2 Étage 7 Appartement S+2 112.29 m²
Vendu
B.7.1 Étage 7 Appartement S+2 97.79 m²
Vendu
A.7.5 Étage 7 Appartement S+2 82.07 m²
Vendu
A.7.2 Étage 7 Appartement S+2 112.29 m²
Vendu
A.7.1 Étage 7 Appartement S+2 97.79 m²
Vendu
Numéro Étage Type Pièces Surface Plan Disponibilité Prix Comparaison
A.1.3 Étage 1 Appartement S+3 166.89 m²
Vendu
A.2.3 Étage 2 Appartement S+3 166.89 m²
Vendu
A.7.3 Étage 7 Appartement S+3 166.89 m²
Vendu
Numéro Étage Type Pièces Surface Plan Disponibilité Prix Comparaison
A.3.3 Étage 3 Appartement S+3 avec chambre de service 186.54 m²
Vendu
A.4.3 Étage 4 Appartement S+3 avec chambre de service 178.64 m²
Vendu
A.5.3 Étage 5 Appartement S+3 avec chambre de service 178.64 m²
Vendu
A.6.3 Étage 6 Appartement S+3 avec chambre de service 178.64 m²
Vendu
Numéro Étage Type Pièces Surface Plan Disponibilité Prix Comparaison
B.8.1 Étage 8 Penthouse S+3 avec chambre de service 308.52 m²
Vendu
A.8.1 Étage 8 Penthouse S+3 avec chambre de service 313.85 m²
Vendu
Numéro Étage Type Pièces Surface Plan Disponibilité Prix Comparaison
LC07 RDC Local Commercial - 118.13 m²
Vendu
LC06 RDC Local Commercial - 67.87 m²
Vendu
LC05 RDC Local Commercial - 92.06 m²
Disponible
LC04 RDC Local Commercial - 88.84 m²
Disponible
LC03 RDC Local Commercial - 105.84 m²
Vendu
LC02 RDC Local Commercial - 117.01 m²
Vendu
LC01 RDC Local Commercial - 67.87 m²
Vendu

L'EMPLACEMENT

Intéressé par une acquisition ?